Charenton le pont 94 Val-de-Marne
25/01/2026

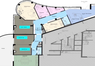
Location de cabinet Médical à Charenton

Installé à Charenton depuis 15 ans en tant qu’ophtalmologiste, j’agrandis mon cabinet et mets à disposition 2 beaux cabinets de consultation ouverts à toutes spécialités, à 200m du métro liberté ligne 8 très agréables avec point d’eau :

  • Le premier fait une superficie de 16,8m² 
  • Le deuxième fait une superficie de 21m² avec accès direct à la terrasse et pouvant être scindé en double box avec entrée indépendante dans chaque box 

Je draine une patientèle large du 94 (Charenton, Maisons Alfort, Alfortville, Vincennes, Nogent) et de l’est Parisien (Paris 12 -13) et suis attaché à l’offre d’une médecine de qualité, dans un cadre agréable et à taille humaine, en association avec d’autres médecins partageant les mêmes valeurs. 

L’ensemble du cabinet est tout neuf avec salle d’attente commune, cuisine, terrasse privative et sera disponible au maximum le 1er juin 2026.

Contacter Cathy au 0628833592 / secretariat.boumendil@gmail.com

La sélection de la rédaction

Témoignage
"Ma concentration ne dépassait pas les 30 minutes" : médecin généraliste, elle raconte "l'enfer" de son burn...
15/04/2026
21
Enquête Gynécologie-Obstétrique
Mal payés, épuisés, trop exposés : les gynécologues désertent les maternités
02/04/2026
15
Psychiatrie
"La caisse me réclame plus de 40.000 euros" : le combat d'un psychiatre pour des prescriptions basées sur les...
08/04/2026
20
Maladies rares
Qu’est-ce que le syndrome de Moersch-Woltman, dont est atteinte Céline Dion ?
01/04/2026
14
Déontologie
"On m'a sali alors que je n'ai fait que rendre service" : un médecin retraité jugé pour avoir continué à...
10/03/2026
0
Chirurgie
Grands brûlés : les défis de la reconstruction cutanée
06/03/2026
3
La Revue du Praticien
Diabétologie
HbA1c : attention aux pièges !
06/12/2024
2